コメント
◆上板橋駅徒歩10分|アパート+戸建 一体運用|満室稼働中
東武東上線「上板橋」駅徒歩10分。
アパート+戸建を一体で保有できる複合収益物件です。
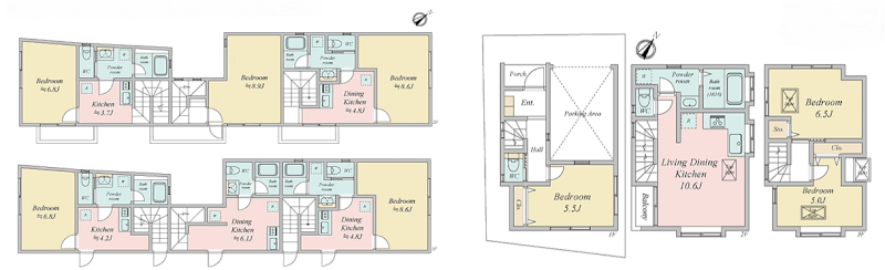
◆アパート
1965年12月築/木造2階建/全5戸
※2023年全面リフォーム済
敷地面積:153.03㎡
延床面積:167.26㎡
◆戸建
2007年7月築/木造3階建
敷地面積:49.49㎡
延床面積:81.46㎡
用途地域は第一種中高層住居専用地域。
建蔽率60%・容積率200%、準防火地域・第2種高度地区に指定されています。
現況満室稼働中。
アパート収益に加え、戸建賃貸による収入を組み合わせた分散型キャッシュフローが特徴です。
◆本物件のポイント
アパート+戸建の複合収益
アパートは2023年フルリフォーム済
満室稼働中












