コメント
◆築浅・13戸の一棟レジデンス
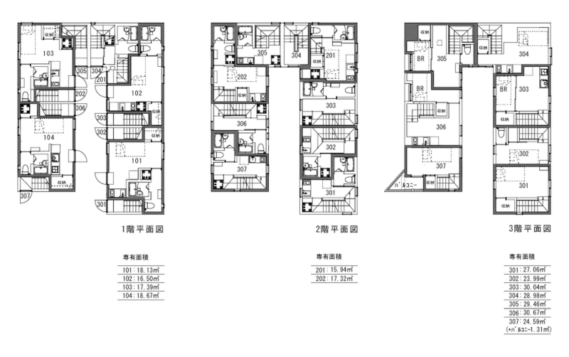
東武東上線「東武練馬」駅徒歩10分/2020年築/木造3階建・全13戸
2020年築の比較的新しい建物で、取得後の修繕負担を抑えた安定運用が期待できる一棟収益物件。
都心方面へ直通する東武東上線エリアに位置し、
戸数規模による収益分散と、長期保有に適した収益構造が特徴です。
◆ポイント
2020年12月築の築浅物件で、初期修繕リスクを抑制
13戸構成により、空室リスクが分散された安定的なキャッシュフロー
駅徒歩10分圏で、賃貸需要が見込める立地バランス
容積率300%(一部200%)の特別工業地域に立地し、土地としてのポテンシャルが高い
木造3階建のため、ランニングコストを抑えた運用が可能
公道接道により、資産流動性・管理面でも安心感
◆物件概要
所在地:東武東上線「東武練馬」駅 徒歩10分
築年月:2020年12月
構造規模:木造3階建/全13戸
敷地面積:209.75㎡
延床面積:299.95㎡
現況:賃貸中
◆用途・法令
用途地域:特別工業地域
建蔽率/容積率:60%/300%(一部200%)
防火地域:準防火地域
高度地区:20m 第2種高度地区
接道:北東側 約5m 公道(接道約3.075m)
◆設備
プロパンガス
公営水道
公共下水











