コメント
◆ポイント
「矢口渡」駅徒歩8分 × 2024年築 × 満室稼働中
築浅ならではの低修繕リスクと、高い入居ニーズを背景に、
安定したキャッシュフローが期待できる小規模レジデンスです。
複数駅・複数路線利用可能な立地で、出口戦略も描きやすい資産性の高い商品となっています。
◆資産性・収益性の魅力
築浅(2024年築)につき初期の大規模修繕リスクが極めて低い
シングル需要の高いエリア × 6戸構成で空室リスクを抑制
満室稼働中で引き渡し後すぐに収益確保
木造3階建のため建築コスト高騰下でも優位性のある再現性
将来的に戸別売却・一棟売却の両方を選択できる柔軟な出口戦略
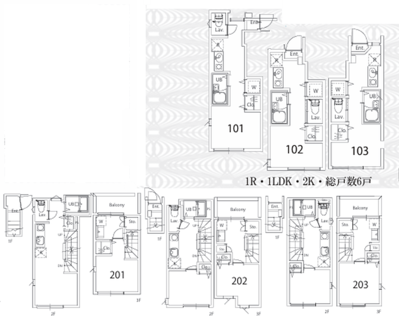
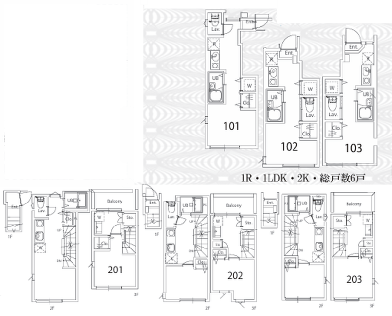
◆物件概要
東急多摩川線「矢口渡」駅 徒歩8分
2024年2月築
木造3階建・全6戸
敷地面積:114.11㎡
延床面積:157.64㎡
現況:満室稼働中
◆法令・エリア情報
用途地域:第一種中高層住居専用地域
建蔽率/容積率:60%/200%
防火地域:準防火地域
高度地区:第2種高度地区
→ 住居系用途の安定したエリアで、賃貸需要が継続しやすい立地特性。
◆入居者ニーズに強い設備仕様
バストイレ別
オートロック・防犯カメラ
エアコン
モニター付きインターホン
宅配ボックス
ケーブルテレビ
競合との差別化ができる設備構成で、長期の入居継続に寄与。












