京王線「代田橋」駅徒歩6分 2018年3月築 RC造4階建

京王線「代田橋」駅徒歩6分 2018年3月築 RC造4階建

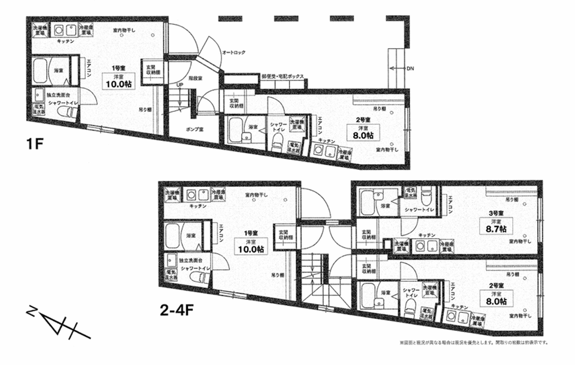
建物外観 建物外観 建物外観 建物外観 建物外観 建物外観 エントランス エントランス エントランス 前面道路 前面道路 近隣道路 間取り図
価格
3億2,000万円
物件種別 【売買】1棟収益マンション / 満室時表面利回り 3.56% / 現在の賃貸状況 / 満室時想定年収 11388000円 /
所在地 東京都世田谷区大原2丁目
COCOFLAT笹塚Ⅱ
交通 京王線 代田橋駅 徒歩6分
京王線 笹塚駅 徒歩10分

コメント

📍 京王線「代田橋」駅 徒歩6分
2018年築・RC造 × 駅近 × 満室稼働中の高稼働アパート

🏢 建物概要

築年:2018年3月(築浅RC造)
構造:鉄筋コンクリート造4階建
戸数:1R × 11戸
延床面積:251.43㎡(約76.06坪)
現況:満室稼働中

📐 土地情報

敷地面積:92.16㎡(約27.87坪)
用途地域:近隣商業地域
建蔽率/容積率:80%/300%
防火地域:防火地域
高度地区:第三種高度地区

🚉 アクセス

京王線「代田橋」駅 徒歩6分
複数駅・複数路線利用可能
新宿・渋谷エリアへのアクセス良好

🌟 特徴・アピールポイント

築浅RC造(2018年築) → 耐久性・資産価値◎
1R × 11戸の単身者向けレジデンス → 安定した賃貸需要を確保
現況:満室稼働中 → 即収益を得られる安心の投資物件
駅徒歩6分、都心直結エリア → 高稼働率・将来性あり

物件概要

駐車場 取引態様 仲介
引渡/入居時期 現況
地目 宅地 用途地域 近隣商業
防火地域含め法令上の制限 防火地域
都市計画 市街化区域 地勢 平坦
土地面積 92.16m² 土地面積計測方式
建ぺい率 80% 容積率 300%
土地権利 所有権 接道状況 一方
接道方向1 接道間口1 7.3m
接道種別1 公道 接道幅員1 5.2m
国土法届出 不要
周辺環境
設備・条件
物件番号
※物件掲載内容と現況に相違がある場合は現況を優先と致します。

お問い合わせフォーム

お名前
題名
メールアドレス
お問い合わせ内容
Fudousan Plugin Ver.5.3.3