会員物件

賃貸中

会員物件

建物外観 建物外観 建物外観 エントランス 1階共用部 共用部 2階共用部 4階共用部 前面道路 前面道路 前面道路 ぜ 建物外観と周辺環境 建物外観と周辺環境
価格
1億5,800万円
物件種別 【売買】1棟収益ビル / 満室時表面利回り 7.24% / 現在の賃貸状況 賃貸中 / 満室時想定年収 11448000円 /
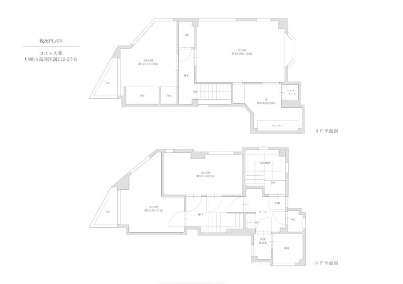
所在地 神奈川県川崎市高津区溝口2丁目
コスモ大和溝口
交通 東急田園都市線 溝の口駅 徒歩4分
JR南武線 武蔵溝ノ口駅 徒歩6分


Fudousan Plugin Ver.5.3.3